Objedinjeni hitni bolnički prijam

Objedinjeni hitni bolnički prijam Kliničkog bolničkog centra Split

2016

UVOD

Hitni prijem izuzetno je stresna djelatnost i okruženje kako za medicinsko osoblje, tako i za pacijente. Stoga je izuzetno važno formiranje prostora opuštanja kako za medicinsko i prateće osoblje, tako i za bolesnike i njihovu pratnju (obitelji). Upravo postojeći sustav južnih terasa - ležaonica, galerija južne fronte i krovna terasa Plućnog paviljona nude do sada nenadmašno interpretiranu jedinstvenu kvalitetu boravka na terasama – južnim galerijama. Potezi južnih galerija integriraju nekoliko funkcionalnih aspekata; kurativno djelovanje na svježem zraku, rasterećenje internih komunikacija, adekvatne zaštite od južne insolacije. Sudjelovanje pacijenta u jedinstvenom splitskom arhipelagu, poput putnika na palubi broda s mislima koje lete u daljinu. Meditativno je to mjesto za ljude željne samoće, ali s druge strane i mjesto susreta i podjele briga, novih poznanstava i suosjećanja. Najhumaniji je to prostor koji poznajem – riječi su akademika Dinka Kovačića za sklop splitske opće bolnice na Firulama.

Zašto rušiti?

Natječajni projekt baziran je na značaju postojećeg ostvarenja Plućnog paviljona (izvorno Paviljona za tuberkulozu) arhitektice Zoje Dumengjić, izvedenome 1954.-1958. godine. Postojeća zgrada u solidnom je stanju, jasne modularne strukture, postojanog armirobetonskog sustava i uščuvanog pročelja. Postojeći armiranobetonski skeletni sustav je intaktan i solidnog stanja konstrukcije (dimenzija cca 35x35cm garancija je solidne postojanosti). Prva je to izvedena zgrada u sklopu realizacije bolničkog sklopa u Splitu arhitektice Zoje Dumengjić 1951.- 1968. Integralno je to ostvarenje razdoblja zrele moderne, postojano i nakon 65 godina od koncipiranja idejnog projekta. Toliko o svježini projektantske geste. Izduženi korpusi zgrada Opće bolnice i Plućnog paviljona sudjeluju u formiranju slike grada s juga, s mora, najznačajnije slike svakog lučkog grada. Horizontalni potezi longitudinalnih krila i južnih galerija uravnotežuju titravu siluetu Mosora u zaleđu i gustog urbanog tkiva Splita. Horizontale galerijskog sustava južnog pročelja glavne bolničke zgrade i Plućnog paviljona funkcionalno integriraju nekoliko komponenti. To su objedinjeni potezi balkona bolničkih soba, koji preuzimaju ulogu komunikacije pacijenata, vanjskih dnevnih boravaka i mjesta zadržavanja u vrijeme bolničkih posjeta. Horizontale galerija, odnosno obrnuti kaskadni presjek (u istočnom dijelu zgrade) tvore ujedno zaštitu od jake južne insolacije, što jest jedan od primarnih problema/aspekata u mediteranskom podneblju. Premda zgrada nije pod zaštitom smatramo da je to vrijedno ostvarenje moderne važno sačuvati, a ne destruirati.

Razvoj projektnog rješenja

Projektantska gesta usmjerena je na očuvanje južnog karakterističnog pročelja i galerijskog sustava, karakterističnog obrnutog kaskadnog presjeka istočnog segmenta, te južnog parka. Sve su to kvalitete postojećeg stanja, te pod utjecajem kvalitetno obnovljenog paviljona za TBC u Paimiu Alvara Aalta, smatramo da je vrijedno očuvanja. Također smatramo kako u vrijeme aktualne gospodarske krize rušenje nije rješenje pogotovo ako se radi o antologijskim ostvarenjima moderne arhiekture Splita, uz to i jednostavne modularne strukture koja lako prihvaća organizaciju novih potrebnih sadržaja. Predloženo rješenje je stoga adicija novog na postojeće. Novoformirani longitudinalni korpus razvija se sjeverno od postojeće zgrade Plućnog Paviljona paralelno sa postojećom zgradom, kao sjeverni aneks koji udomljuje visokotehnološke prostore Hitnog prijema, uz uklanjanje sjevernog ulaznog krila postojećeg Plućnog paviljona bez istaknutih prostorno-oblikovnih kvaliteta. Kvalitete postojećeg paviljona koji se maksimalno otvara svojim terasama i ostakljenim površinama prema jugu i parku izuzetno artikuliraju nužne komponente hitnog prijema, kvalitetnog prostora boravka na svježem zraku, dok su visokotehnološki sadržaji predviđeni u sjevernom aneksu, adekvatne sjeverne orijentacije intimnijeg karaktera; oblače se u vanjsku polutransparentnu ovojnicu i štite od prevelikog eksponiranja. To su prostori koji zahtjevaju visoku koncentraciju i mir.

Odnos postojećeg i novog i medusobna povezanost

Novi potez sjevernog aneksa u više oblikovnih i funkcionalnih elemenata korespondira sa postojećim paviljonom. Poput horizontalnih poteza južnih terasa, i tu je naglasak na horizontalne linije kao distinkcija između katova. Takoder se ponavlja igra uvlačenja i izvlačenja fasade. Dok se u postojećem paviljonu pomaci događaju iza nosivih elemenata stupova te ostaju vidljivi snažni horizontalni potezi, u novom dijelu istaci na fasadi povlače za sobom vanjsku ovojnicu te se tako duga horizontala razbija u sklop manjih i većih volumena stvarajući igru po katovima. U postojecem dijelu pomaci služe za stvaranje veće i manje terase i oblikuju obrnuti kaskadni presjek za zaštitu od sunca. U novom dijelu na etaži prizemlja dodatno osvjetljavaju poluukopane prostore na zapadnom dijelu zgrade, a na gornjim katovima stvaraju pojedine loggie sa zelenilom, „buffer „ zonu koja dodatno štiti visokotehnološke operativne prostore od pogleda i ometanja izvana. Longitudinalni sjeverni aneks dilatiran je od postojećeg longitudinalnog paviljona, a dilatacijska fuga u funkciji je internog atrija, odnosno zračnog prostora. Taj interpolirani zračni prostor nadovezuje se na temu atrija koje arh. Zoja Dumengjić integrira u sklopu sjeverozapadnog poliklinickog sklopa. Time je ujedno riješeno adekvatno provjetravanje i osvjetljenje internih prostora sklopa, što jest jedna od preokupacija projektantice Zoje Dumengjić. Dilatacija oznacava jasnu distinkciju izmedu postojeće zgrade i sjeverne dogradnje. Ulazi hitne ustanove rašclanjeni su u dva nivoa, na temelju denivelacije sjeverne prilazne prometnice. Niz raznovrsnih ulaza integrirani su u sklopu novoformiranog sjevernog aneksa i dilatacije. Time su ostvarena i prostorno-funkcionalna distinkcija među ulazima i različitim grupama korisnika hitnog prijama. Postojeća zgrada i sjeverni aneks međusobno su povezani s nizom spojenih galerija uz dvije vertikalne jezgre (stubišta s dizalom); postojeće stubište i analogno novo stubište uz zračni prostor. Postojeći konstruktivni sustav malog je osnog rastera cca 3,6m x3,6m, sa stupovima dimenzioniranim cca 35 x 35 cm. Taj raster preuzet je i dijelom reinterpretiran u sjevernom aneksu kroz tri uzdužne konstruktivne osi, te omogućuje i kasnije planiranu nadogradnju programa Trauma centra kroz nekoliko etaža iznad sjevernog aneksa. Mogući ulaz Trauma centra je s nivoa prvog kata Plućnog paviljona, uz istočni ulaz i stubišnu jezgru. Skeletni modularni sustav u postojećem i adiranom sjevernom aneksu omogućuje fleksibilnu dispoziciju svih programom predvidenih sadržaja. Uz južno procelje plućnog paviljona smješteni su „blaži“ sadržaji; subakutni pacijenti, čekaonice .... Upravo uz njih u južnoj zoni galerijski sustav i u novom sadržaju zadržava izvornu funkciju paralelne eksterne komunikacije bolesnika, osoba u pratnji, te time rasterećuje interni prostor. Mjesto susreta i tješenja. Mjesto izrazitog psihosocijalnog značaja, i oblikovne kvalitete.

Krovna terasa

Krovna ležaonica postojećeg paviljona ostaje intaktna; prostor rekreacije i predaha s impresivnim pogledom za bolesnike i medicinsko osoblje na splitski arhipelag. Ujedno, u slučaju kasnije moguće nadogradnje Trauma centra prostor krovne ležaonice može se reinterpretirati u skladu s budućim potrebama. Očuvanjem Plućnog paviljona omogućiti će se opstanak zgrade u kojoj se prema splitskoj legendi, pacijenti brže liječe.

ZAKLJUČAK

Ovo projektno rješenje obilježava jednostavna projektantska i konstruktivna gesta, koja maksimalno racionalizira sve troškove. Pokazuje da je i Split, poput Paimia u Finskoj kadar ocuvati svoja antologijska ostvarenja moderne arhitekture. Ovim projektnim rješenjem u u eksterijeru se očituje ono što je bitno. Postojeći Plućni paviljon koji sudjeluje u formiranju slike grada s juga i element je karakterističnog projektantskog izraza Opće bolnice na Firulama, te karakteristično južno pročelje bolnice ostaje intaktno. Višestruka kvaliteta galerijske fronte je uščuvana, a visokotehnološki operacijski trakt, poput strukture u glavnoj bolničkoj zgradi adiran je kao sjeverni aneks obucen u zaštitno ruho polutrnasparentne ovojnice. Na sjevernom aneksu moguće je izgraditi u budućnosti novi Trauma centar, koji se proporcijom uklapa u zatečene prostorne odnose. Zaključno, uz očuvanje postojeceg Plućnog paviljona – koji nije pod zaštitom, ali je antologijsko ostvarenje moderne arhitekture Splita, ostvarena je krajnje jednostavna adirana forma koja udomljuje visokotehnološke operativne sadržaje. Time se rješenje i troškovi maksimalno moguće racionaliziraju, a zadržavaju se nenadmašne kvalitete postojećeg ostvarenja moderne.

Koautor:

Zrinka Barišić Marenić

Status:

Natječaj, 7. mjesto

Nature

postojeći paviljon za tuberkulozu, djelo arhitektice Zoje Dumenjgić izveden 1954-1958

Nature

situacija

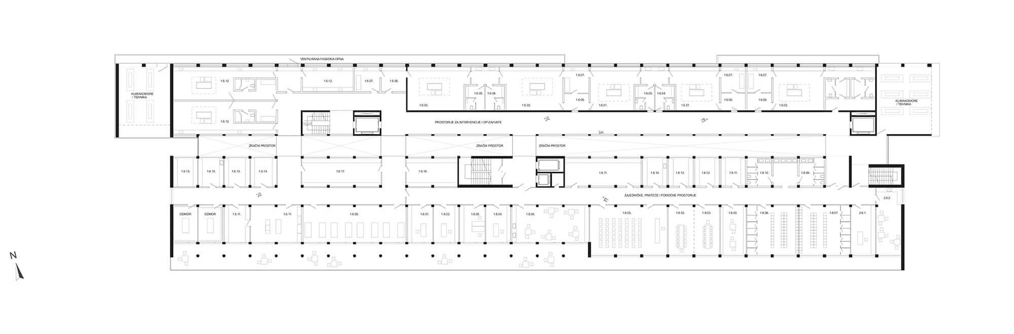
tlocrt prizemlja

tlocrt suterena

tlocrt kata

maketa

pogled na ohbp

pogled na ohbp

pogled na ohbp

pogled na interijer ohbp-a